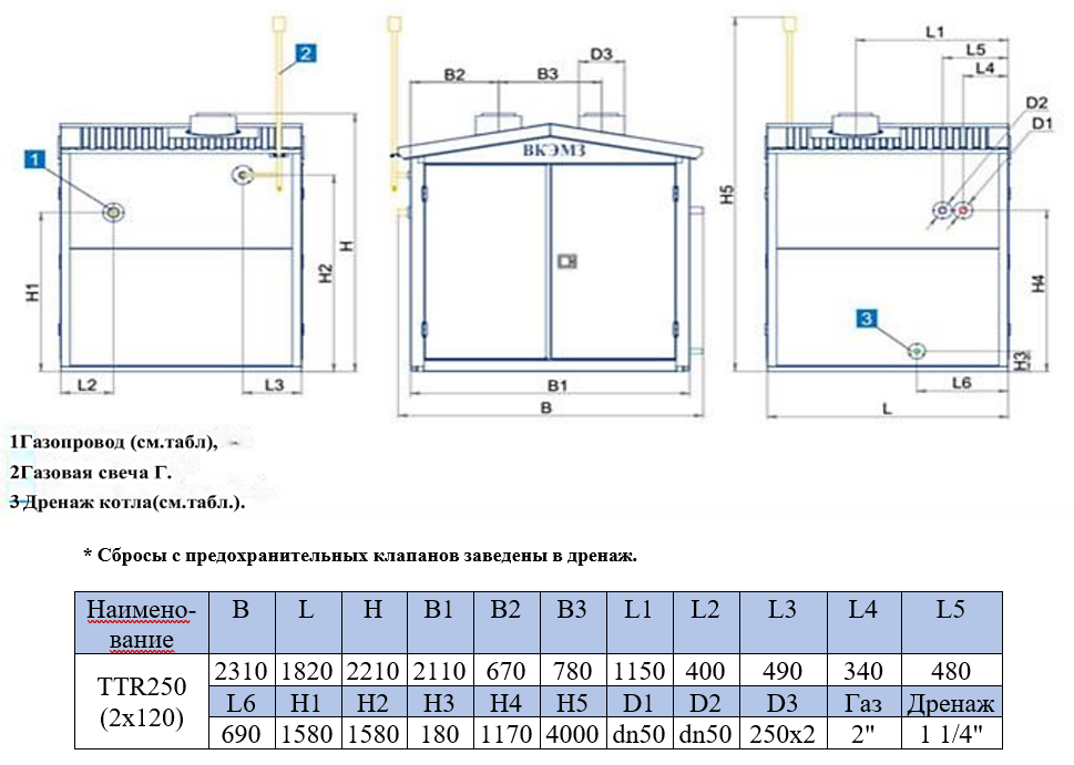
Котельная установка наружного размещения TTR 250
ХАРАКТЕРИСТИКИ
На все водогрейные котельные установки наружного размещения серии TTR предоставляется официальная гарантия производителя сроком 24 месяца с момента продажи, а на оборудование в составе – согласно паспорту завода-изготовителя
Подробнее
КУНР TTR 250 — это готовая блочно-модульная котельная установка для автономного теплоснабжения. В основе системы два газовых водогрейных котла Rossen RSA120, обеспечивающих суммарную тепловую мощность 240 кВт.
Особенности оборудования
Четырехкотловая схема обеспечивает гибкое каскадное регулирование мощности: при неполной нагрузке автоматически задействуется только необходимое количество котлов, что дает существенную экономию газа и продлевает срок службы оборудования. Каждый котел демонстрирует высокий КПД (до 93%) благодаря эффективным водотрубным теплообменникам с оребренными трубами.
Котлы Rossen RSA120 отличаются малым водяным объемом, что минимизирует гидравлические удары и риски при перепадах давления в системе. Конструкция теплообменника эффективно компенсирует тепловое расширение и специально разработана для выдерживания частых циклов включения/выключения без разрушения металла. Все оборудование имеет небольшой вес и компактные габариты, что максимально упрощает транспортировку и логистику при монтаже.
Характеристики
-
Общая мощность: 240 кВт (2 x 120 кВт)
-
Тип котлов: газовые водотрубные
-
КПД: до 93%
-
Топливо: природный или сжиженный газ
-
Температура теплоносителя: 50–95°С
-
Ориентировочная отапливаемая площадь: до 2400 м²
Где применять
Котельная подходит для отопления административных и производственных зданий, торговых центров, гостиниц, крупных частных домов, объектов социальной сферы.
Возможен заказ любого цвета фасада под архитектуные особенности отапливаемых зданий.
Управление и автоматика
Автоматика поддерживает заданную температуру, контролирует параметры безопасности и отключает горелку при нештатных ситуациях. Есть световая индикация режимов работы.
Оборудование поставляется в полной заводской готовности, адаптировано для установки в ограниченном пространстве и не требует сложного фундамента.
ОПИСАНИЕ
КУНР TTR 250 — это готовая блочно-модульная котельная установка для автономного теплоснабжения. В основе системы два газовых водогрейных котла Rossen RSA120, обеспечивающих суммарную тепловую мощность 240 кВт.
Особенности оборудования
Четырехкотловая схема обеспечивает гибкое каскадное регулирование мощности: при неполной нагрузке автоматически задействуется только необходимое количество котлов, что дает существенную экономию газа и продлевает срок службы оборудования. Каждый котел демонстрирует высокий КПД (до 93%) благодаря эффективным водотрубным теплообменникам с оребренными трубами.
Котлы Rossen RSA120 отличаются малым водяным объемом, что минимизирует гидравлические удары и риски при перепадах давления в системе. Конструкция теплообменника эффективно компенсирует тепловое расширение и специально разработана для выдерживания частых циклов включения/выключения без разрушения металла. Все оборудование имеет небольшой вес и компактные габариты, что максимально упрощает транспортировку и логистику при монтаже.
Характеристики
-
Общая мощность: 240 кВт (2 x 120 кВт)
-
Тип котлов: газовые водотрубные
-
КПД: до 93%
-
Топливо: природный или сжиженный газ
-
Температура теплоносителя: 50–95°С
-
Ориентировочная отапливаемая площадь: до 2400 м²
Где применять
Котельная подходит для отопления административных и производственных зданий, торговых центров, гостиниц, крупных частных домов, объектов социальной сферы.
Возможен заказ любого цвета фасада под архитектуные особенности отапливаемых зданий.
Управление и автоматика
Автоматика поддерживает заданную температуру, контролирует параметры безопасности и отключает горелку при нештатных ситуациях. Есть световая индикация режимов работы.
Оборудование поставляется в полной заводской готовности, адаптировано для установки в ограниченном пространстве и не требует сложного фундамента.
ИНЖЕНЕРНЫЙ ПОДХОД К ВАШЕЙ ЭФФЕКТИВНОСТИ
Мы проектируем решения, которые работают на ваш результат – без компромиссов в надежности и экономии
-
Комплексный цикл "Под ключ" от проектирования до обслуживания
-
Опыт с 2008 года и сервисное партнерство с 20+ мировыми брендами
-
Готовые решения для ускорения монтажа
-
Энергоэффективность до 93% и интеллектуальное каскадное управление
-
Полный комплект документов и гарантия 24 месяца
ИНЖЕНЕРНЫЙ ПОДХОД К ВАШЕЙ ЭФФЕКТИВНОСТИ
Мы проектируем решения, которые работают на ваш результат – без компромиссов в надежности и экономии
-
Комплексный цикл "Под ключ" от проектирования до обслуживания
-
Опыт с 2008 года и сервисное партнерство с 20+ мировыми брендами
-
Готовые решения для ускорения монтажа
-
Энергоэффективность до 93% и интеллектуальное каскадное управление
-
Полный комплект документов и гарантия 24 месяца
ХАРАКТЕРИСТИКИ
Ваша заявка: Котельная установка наружного размещения TTR 250
Мы перезвоним вам и обсудим детали заказа в ближайшее время
Задать вопрос Котельная установка наружного размещения TTR 250
Задайте вопрос, и мы ответим вам в кратчайшие сроки
Заявка успешно отправлена!
Менеджер скоро с вами свяжется.
